У наших заказчиков часто возникает вопрос по поводу фундамента для дома. Кого-то не устраивает свайно-винтовой фундамент, хочется понадежнее, покрепче. В этой статье разберемся что лучше выбрать и сколько это все стоит на реальном примере одной из заказчиц.
Для начала рассмотрим проект дома поближе)) Планируется строительство двухэтажного каркасного дома. Проект достаточно простой, но красивый. В традициях скандинавов))
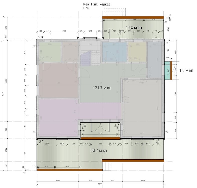
| План первого этажа | План второго этажа |
Плита УШП будет выглядеть вот так:
При устройстве плиты УШП предполагается, что патио, веранда и крыльцо будет устроено на сваях. Это дешевле, но никак не влияет на комфортность пользования домом. Рыжим фоном показано устройство ростверка. Итого имеем: 121,7 м.кв нужно залить УШП, плюс сделать 52,2 м.кв деревянного пола по лагам. УШП в среднем со всеми работами и материалами выходит 7 500 руб/м2. Здесь 121,7 м.кв. Итого за УШП получаем 912 750 руб. Это у нас готовые утепленные полы первого этажа, разведено отопление первого этажа, сделана разводка водо и канализационных труб. Плюс к этому надо прибавить стоимость свай, лаг пола и доски пола для патио, крыльца и веранды, это, по предварительным прикидкам с работами будет 150 000 руб.
ИТОГО сделать УШП для этого дома будет 1 062 750 руб.
Ленточный мелкозаглубленный фундамент для этого дома будет выглядеть вот так:
Итого получаем 94,5 м.п. ленточного фундамента под основной дом и такой же свайный под патио, веранду и крыльцо. Устроить ленту будет стоить 425 000 руб. Веранды все так же будут стоить 150 000 руб. К этому добавляем лаги пола, ОСП на пол, утеплитель, пленки это примерно 270 000 рублей и отопление 1 этажа, это около 100 000 руб.
ИТОГО ленточный мелкозаглубленный фундамент для этого дома будет 425 000+150 000+270 000 +100 000 руб=945 000руб.
Выводы: Разница между лентой и УШП достаточно скромная, но это заметно в конце стройки))) Многие сравнивают первоначальные вложения на нулевой цикл и получается, что на ленту надо меньше денег и редко кто бывает дальновидным и считает свои расходы на выходе, когда дом уже будет построен, поэтому заказчики часто попадают в ловушку "построю коробку на ленте, дальше разберемся", потому что когда начинаешь считать оставшиеся вложения, удивительные цифры сильно не уменьшаются)))
PS. Сравнивайте правильно)))
